Location, style and space! - Midcentury Modern Home - Steps from Restaurant Row | House in Portland

1 Bedroom House in Boise, Portland
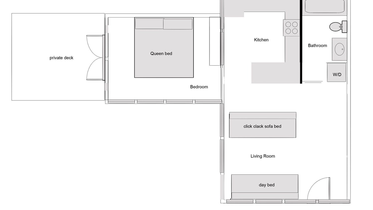
A modern design oasis nestled between forests of bamboo and pine yet steps to restaurant row on both Williams and Mississippi. Ample free parking available out front. Completely private detached / entire home. This house has been carefully architected down to the last detail: light filled with over a dozen windows yet all of them private / sky view or bamboo views! completely secluded and spacious and airy with 20 foot ceilings and everything you'd need. Sip coffee on your enclosed bamboo lined patio, walk to Portland's best foodie restaurants and shops! Mere Steps to restaurant row on N Williams and Shaver and bustling bars shops restaurants on Mississippi. Full kitchen, new bath, genuine mid century furniture and (real) art by local artists and a location that can't be beat! You are in for a true Portland experience here! I have lots of tips and recommendations too, but only if you need them: It would be my pleasure to host you! (note, all of the photos of restaurants, shops and bars are all less than 5 min walk away!)
Extra cleaning precautions are being taken during covid and our cleaner has been certified by the American Hotel & Lodging Educational Institute. We dont ask our guests to strip beds or laundry, or deal with recycling/trash, we will take care of everything, we just want our guests to enjoy their stay :)
Location, style and space! - Midcentury Modern Home - Steps from Restaurant Row is located in Boise. Location, style and space! - Midcentury Modern Home - Steps from Restaurant Row provides accommodation, featuring Bedding/Linens, Wellness Facilities, Fireplace/Heating, among other amenities. This House features Bedding/Linens, Wellness Facilities, Fireplace/Heating, to make your stay a comfortable one.
Location, style and space! - Midcentury Modern Home - Steps from Restaurant Row has 1 Bedroom , 1 Bathroom, and max occupancy of 4 people. The minimum rental for this property is 1 nights, but this can change depending on the season you plan on staying. Previous guests have given good rated it, and VRBO labeled it a top-rated House because of the excellent services rendered by the owner or manager of this House, and has consistently provided great experiences for their guests. Most families or guests that use it recommend it to their friends and some of them are repeat guests. House has a friendly neighborhood, and the Boise has interesting places to visit. If you want to learn more about the House in Boise, such as places to visit and things to do nearby, you can check below to learn more.
Amenities
Policies
Extra-person charges may apply and vary depending on property policy government-issued photo identification and a credit card, debit card, or cash deposit may be required at check-in for incidental charges host has indicated there is a carbon monoxide detector on the property host has indicated there is a smoke detector on the property onsite parties or group events are strictly prohibited property registration number 19-228210-000-00-ho safety features at this property include a fire extinguisher, a first aid kit, and a deadbolt lock special requests are subject to availability upon check-in and may incur additional charges; special requests cannot be guaranteed this property is managed through our partner, vrbo. you will receive an email from vrbo with a link to a vrbo account, where you can change or cancel your reservation